VHIR Vall d´Hebron Research Institute
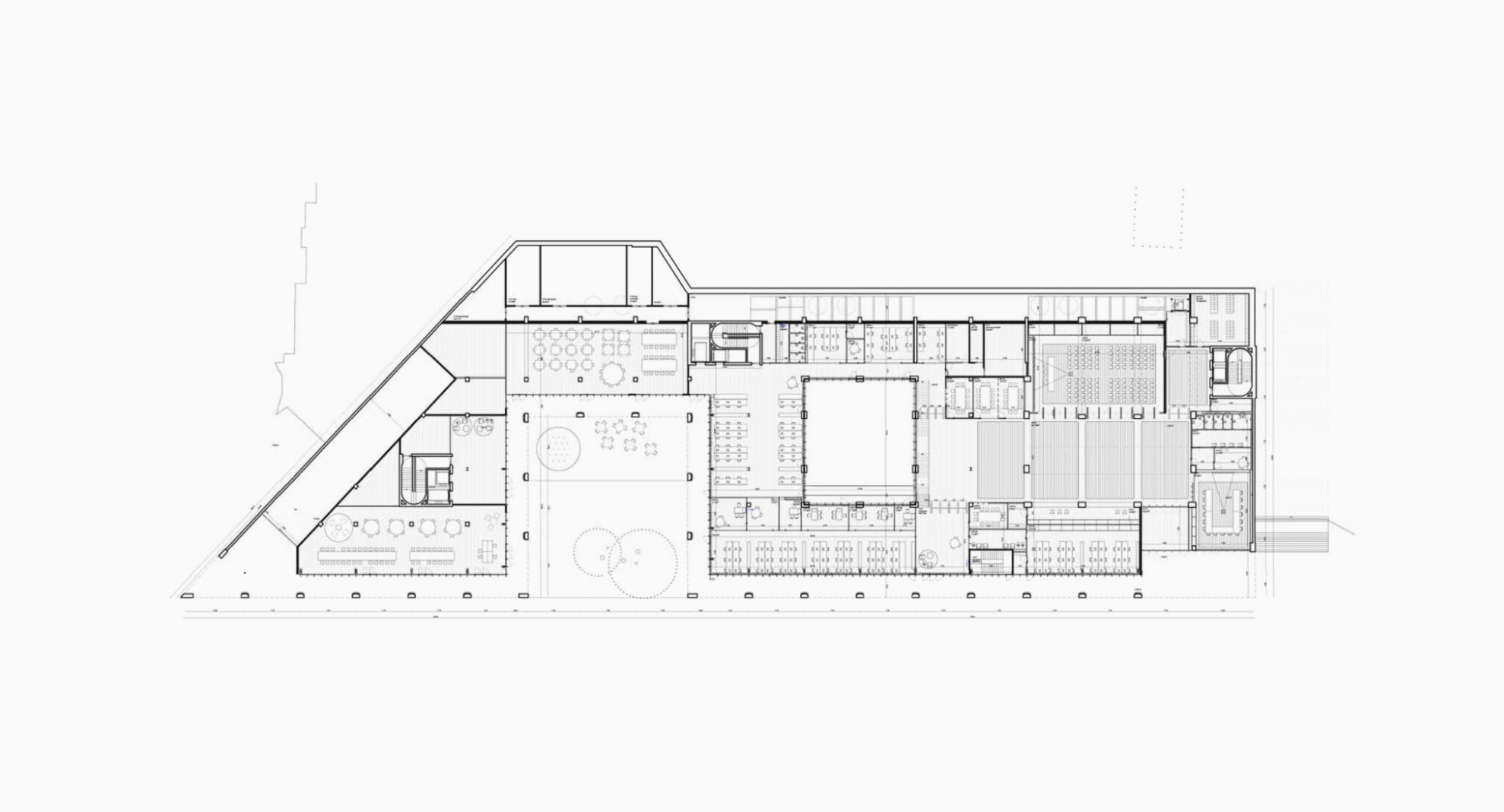
The Vall d’Hebron Hospital Campus project is envisioned as a transformative intervention that brings coherence and connectivity to an area long defined by fragmented growth and limited accessibility. The proposal reimagines the campus as an open, integrated landscape structured around a large public park that links surrounding neighborhoods with the city. By removing outdated buildings and relocating programs into semi-underground spaces, the project restores the site’s natural character while introducing new horizontal promenades and vertical pathways that enhance movement across its steep terrain. The Vall d’Hebron Research Centre (VHIR) is conceived as an organic extension of this renewed landscape. Embedded into the mountainside, the building minimizes its visual presence by revealing only a single façade, while the terrain continues seamlessly across its roof, merging architecture and nature. Its design revolves around three courtyards that bring daylight, ventilation, and social interaction into the heart of the building. Terraces along the façade blur the boundaries between workspaces and the outdoors, fostering a close relationship between researchers and their environment. This interplay between architecture and topography shapes a porous, dynamic spatial system where circulation, research, and public life intersect. The VHIR stands not only as a cutting-edge research facility but also as an infrastructural and social catalyst that reinforces the new identity of the Vall d’Hebron Campus.
Share
Tweet
Pin it








































