Restoration and Extension of the Geneva Library
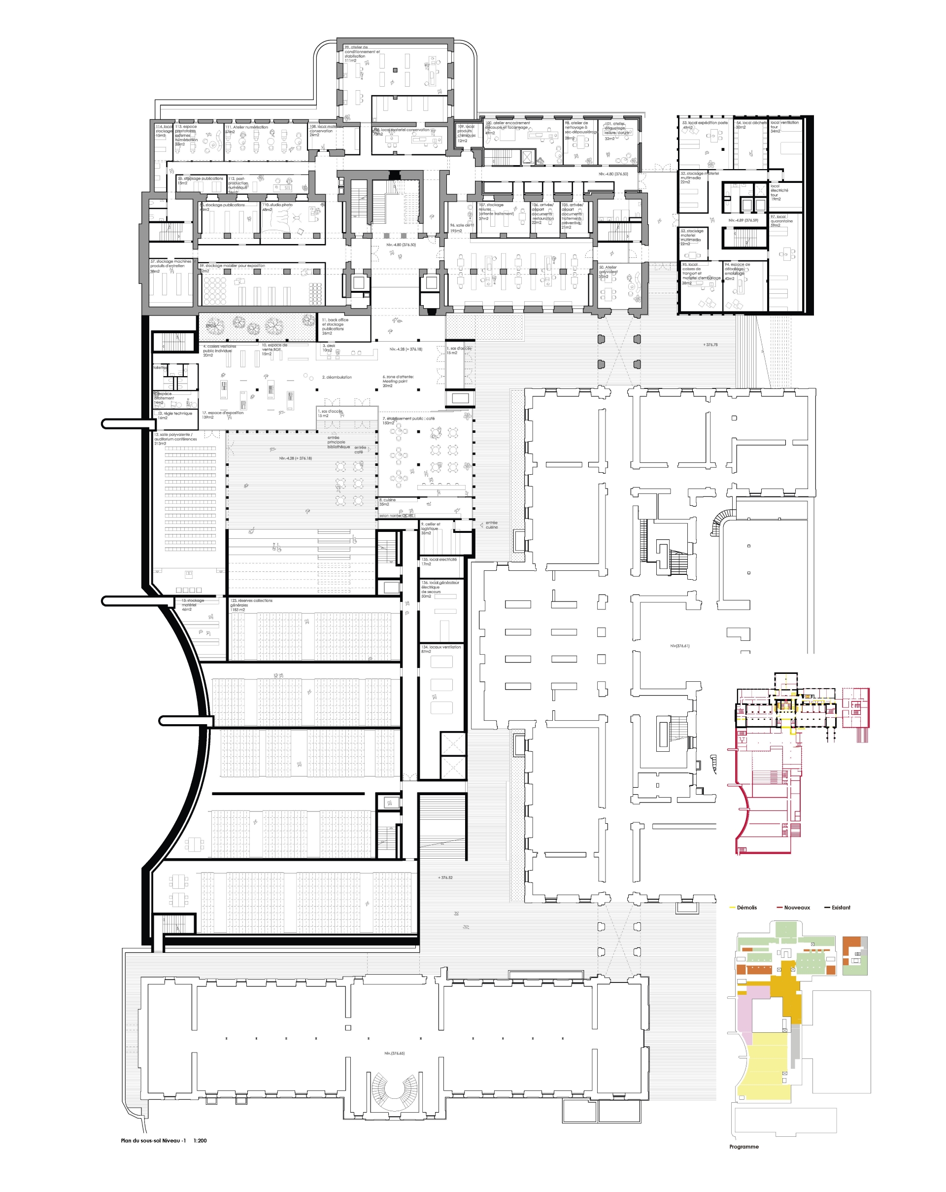
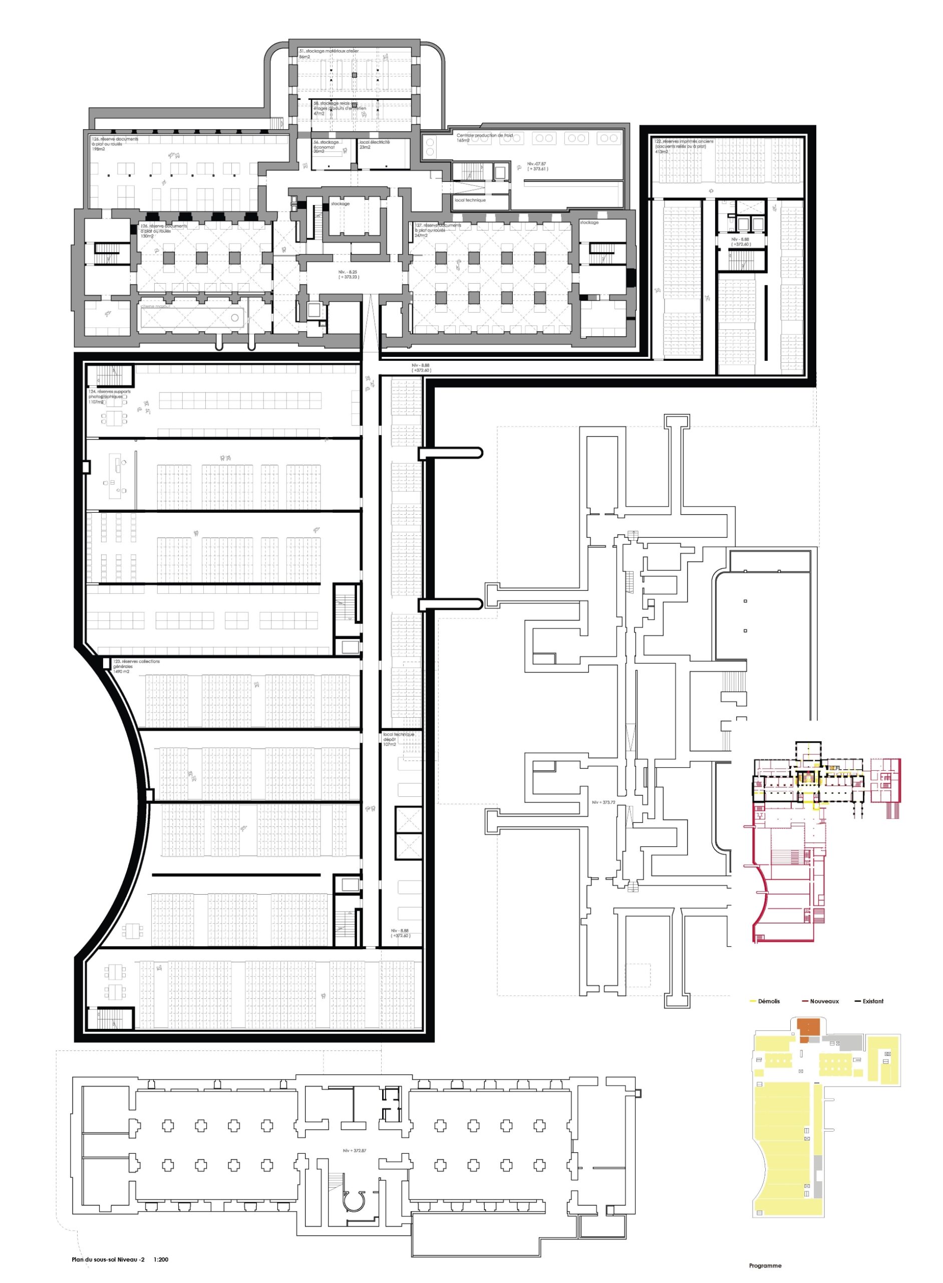
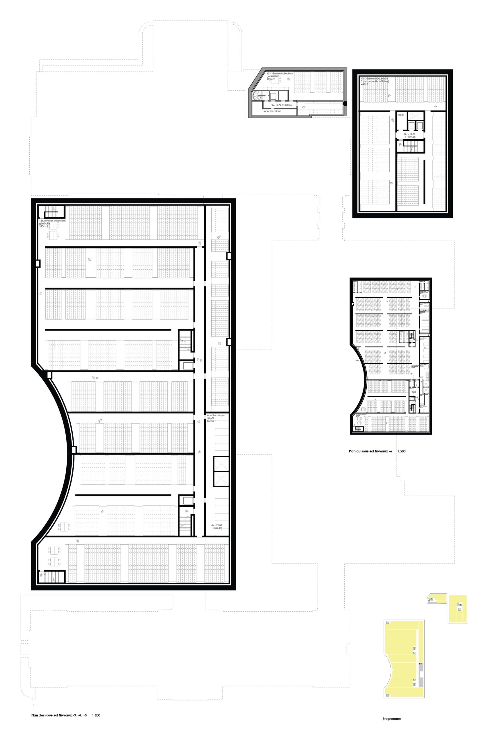
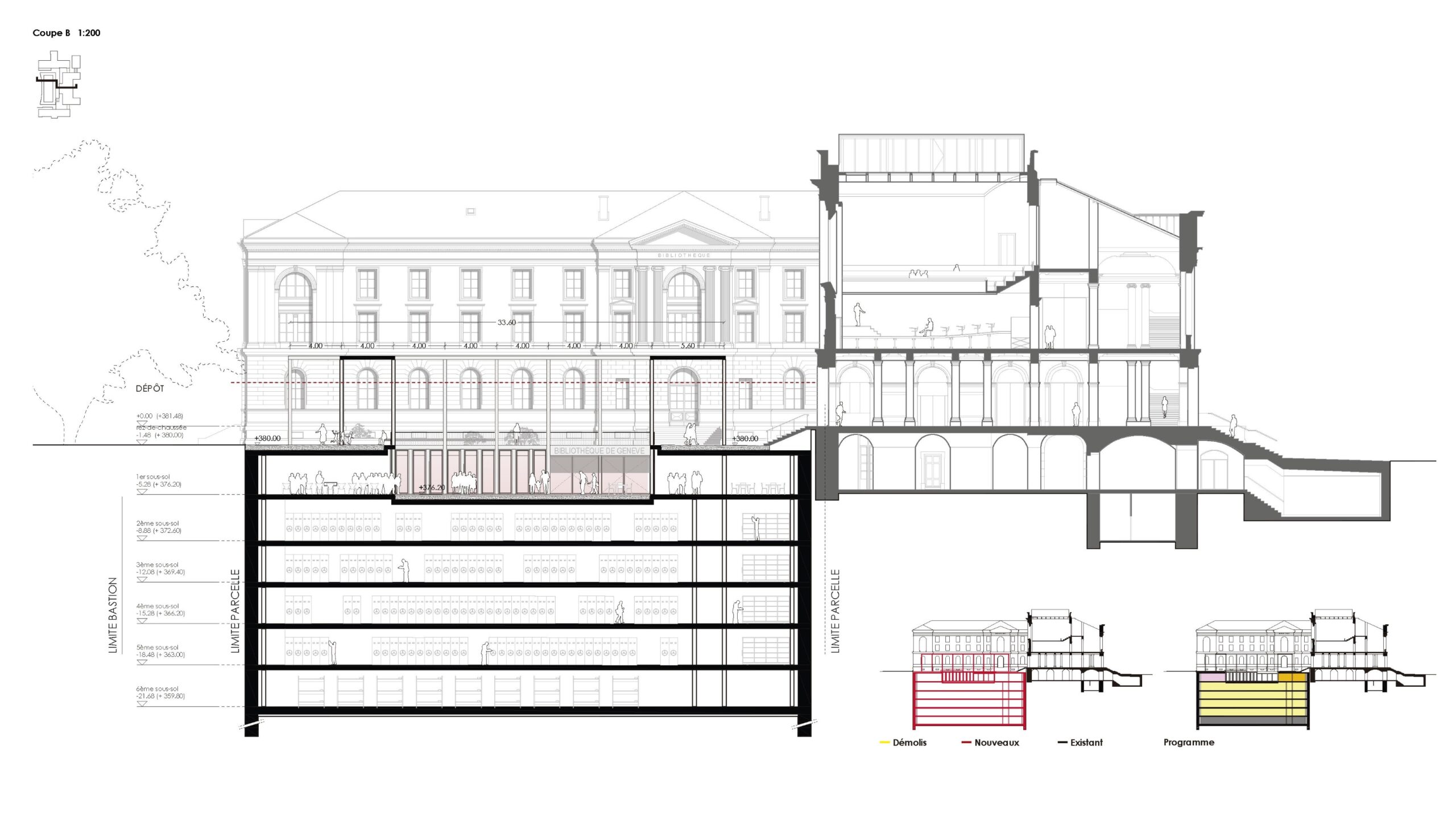
The Bibliothèque de Genève sits within the historic Bastions district, where the city’s defensive past, academic institutions, and public spaces intersect. Once part of Geneva’s 16th–17th century fortifications, the site was transformed into the Promenade des Bastions in the 19th century. Today, the library forms a coherent neoclassical ensemble with the University’s central building and the former museum, arranged around a central courtyard. This space acts as an “urban room,” linking architecture and landscape while organizing access, movement, and civic identity. The project focuses on restoring the building’s original spatial clarity while adapting it for contemporary use. Previous alterations had obscured key volumes, so the intervention reintroduces double-height spaces, vertical continuity, and natural light. Historic elements are preserved, while modern systems and updated circulation are carefully integrated. The result balances heritage and innovation, reinforcing the library’s role as a cultural landmark and an active public space.
Share
Tweet
Pin it
















