Renovation of the Deutsches Nationaltheater Weimar
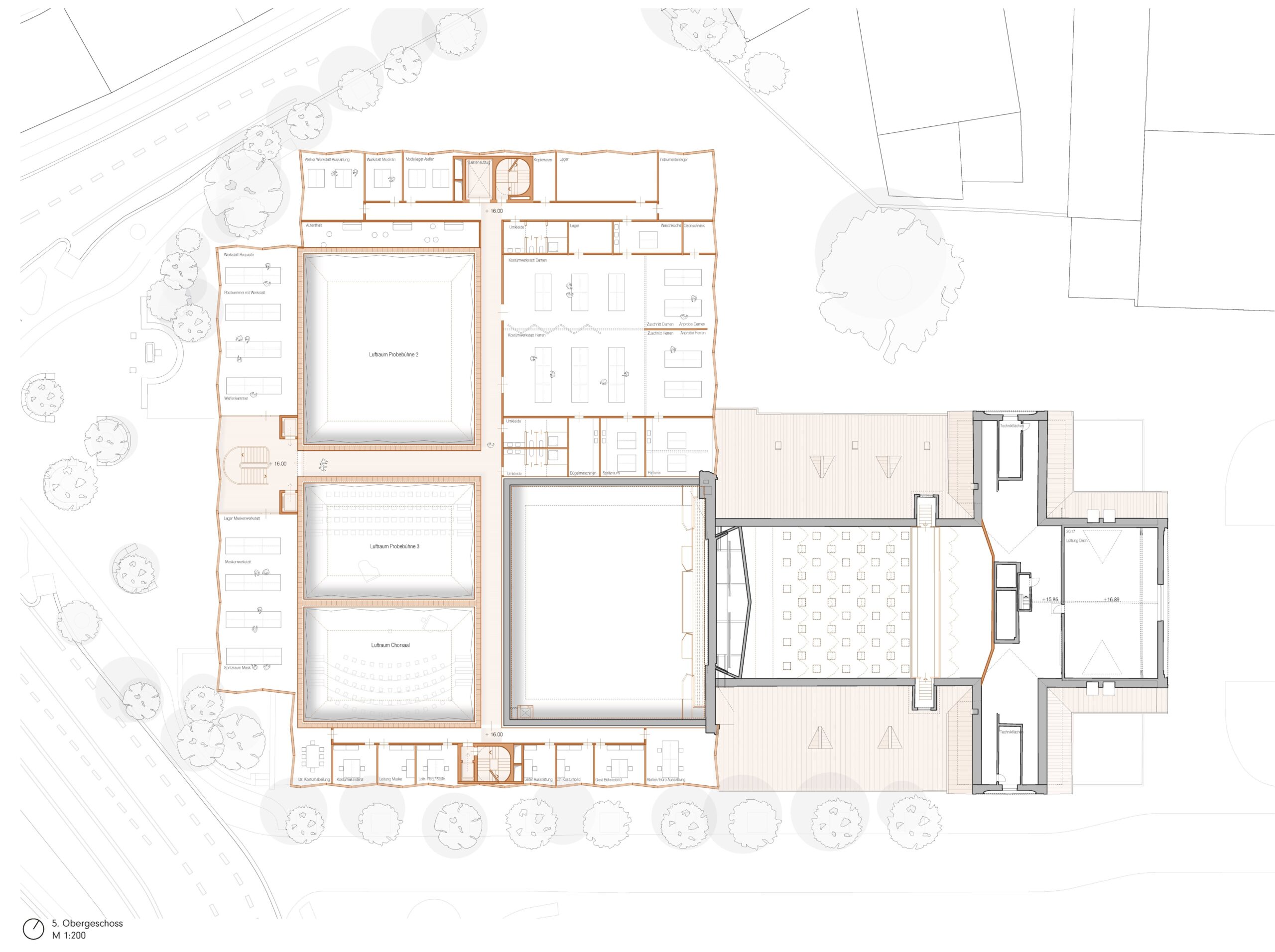
The project reimagines the Deutsches Nationaltheater Weimar as a vital cultural landmark that remains deeply rooted in the city’s historic identity. Rather than introducing a contrasting new structure, the design emphasizes continuity with the character of Weimar’s Altstadt. The extension integrates respectfully into the historic roofscape, conceived as an evolved roof element that blends harmoniously with the existing skyline. This approach preserves the scale and rhythm of the surrounding architecture while creating space for new functional programs. Through careful restoration and reinterpretation, the design celebrates the building’s layered history, transforming it into a living narrative that bridges Weimar’s past and present. At an urban level, the theater opens itself to both the Theaterplatz and Sophiensiftsplatz, establishing a two-sided civic presence that encourages permeability and interaction. Activating the rear façade and introducing new public elements such as terraces and visible rehearsal areas that foster a stronger connection between the theater and the everyday life of the city. In doing so, the project shifts the institution from a closed monument to an open, participatory urban actor that embodies Weimar’s enduring cultural vitality.
Share
Tweet
Pin it





















