Renovation and Expansion of the Festspielhaus in Salzburg
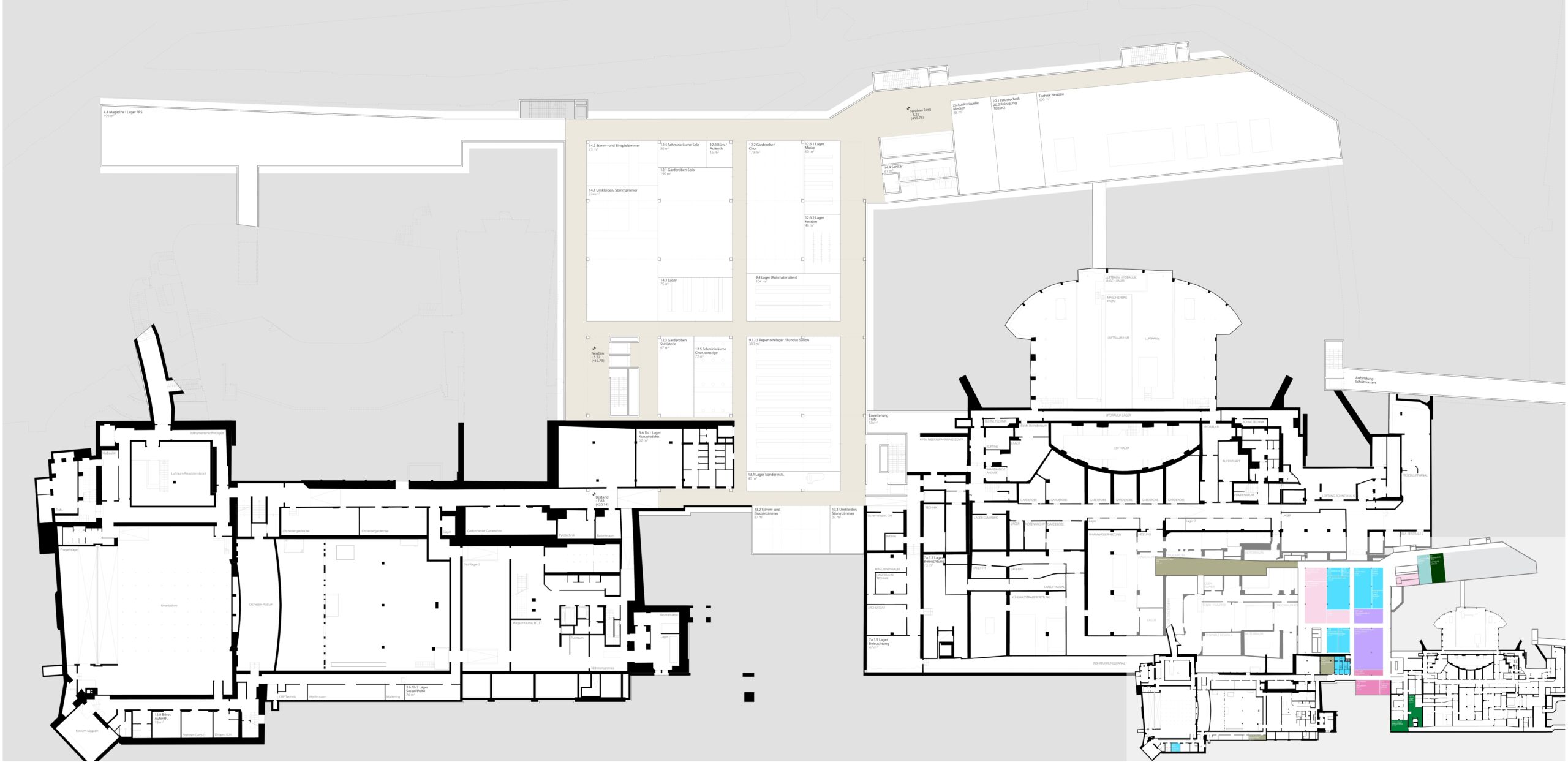
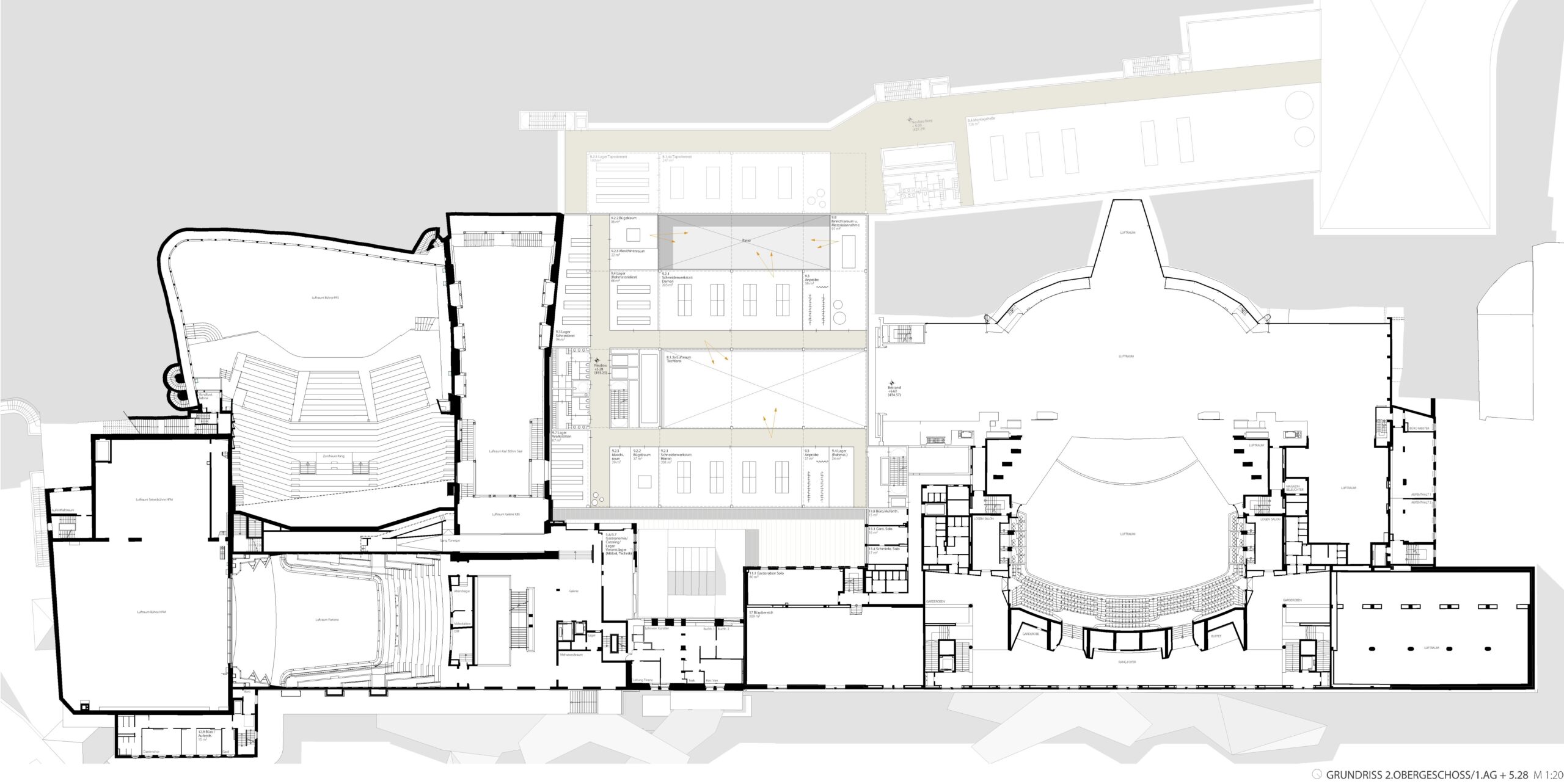
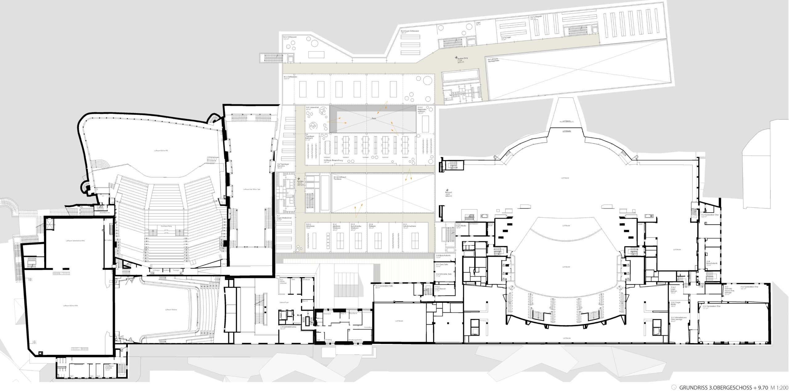
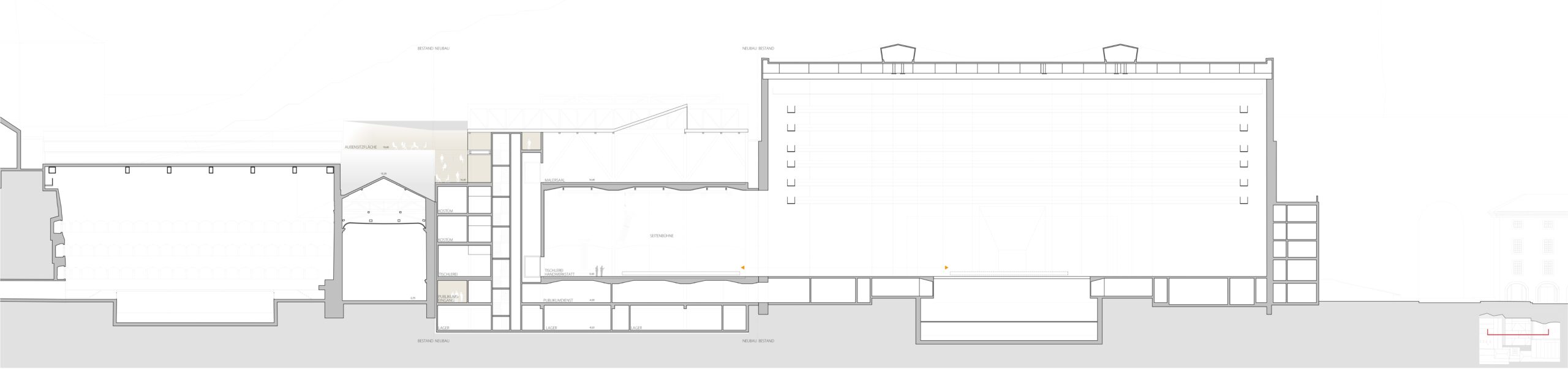
Set within the historic fabric of Salzburg and at the edge of the Mönchsberg, the Festspielhaus complex reflects a layered composition of architectural eras, resulting in a fragmented urban condition and a series of underdefined public spaces. The project responds to this context by establishing a new architectural clarity and urban identity through the introduction of a central building the “Fabrik der Träume.” Acting as both a connective hub and a place of production, this new intervention reorganizes the site into distinct yet interrelated zones for logistics, artists, and the public, strengthening functional efficiency and spatial coherence. By removing incongruous structures and creating a central void, the design opens new relationships between the surrounding squares and circulation paths, transforming previously residual areas into active urban spaces. Architecturally, the proposal adopts a restrained and contemporary language that mediates between the historic surroundings, using a clear geometry, articulated roofscape, and a material palette of concrete and timber to balance robustness with warmth. Courtyards and carefully positioned openings bring natural light deep into the building, while flexible layouts allow for future adaptation.
Share
Tweet
Pin it















