New Building for the University of Bonn
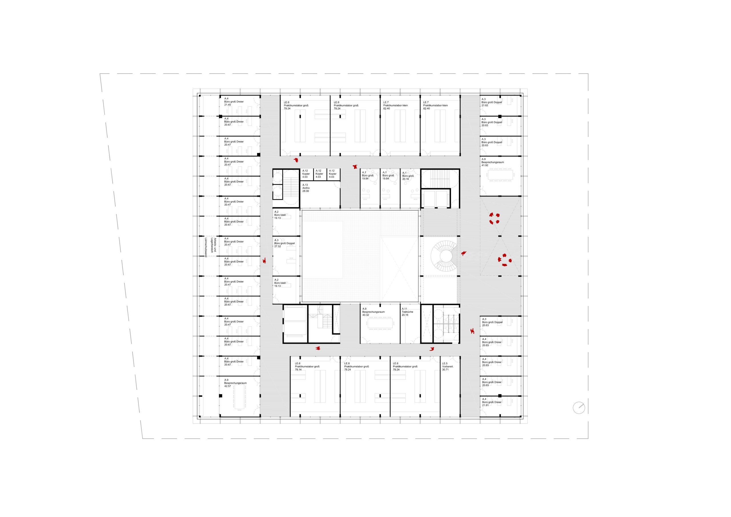
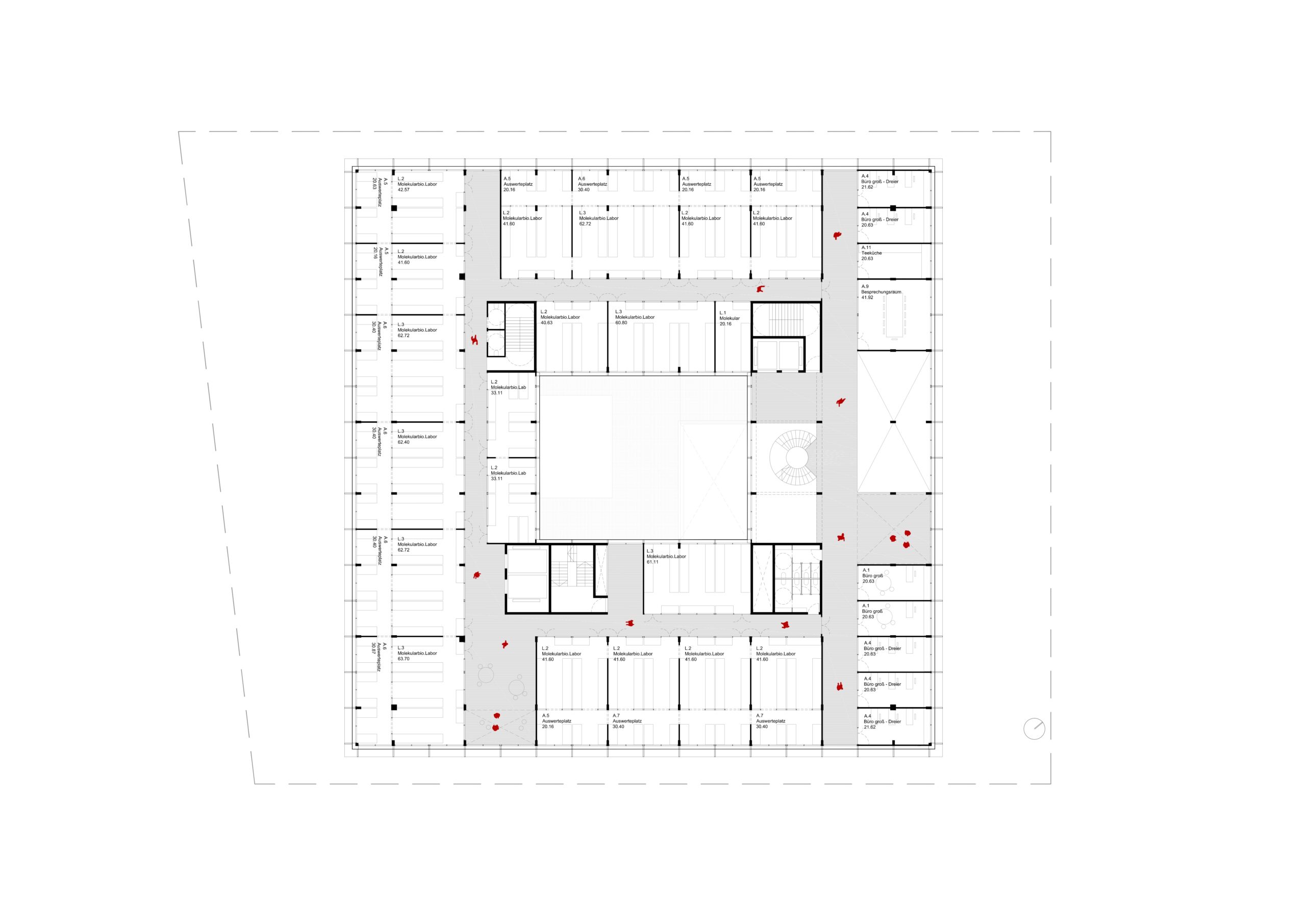
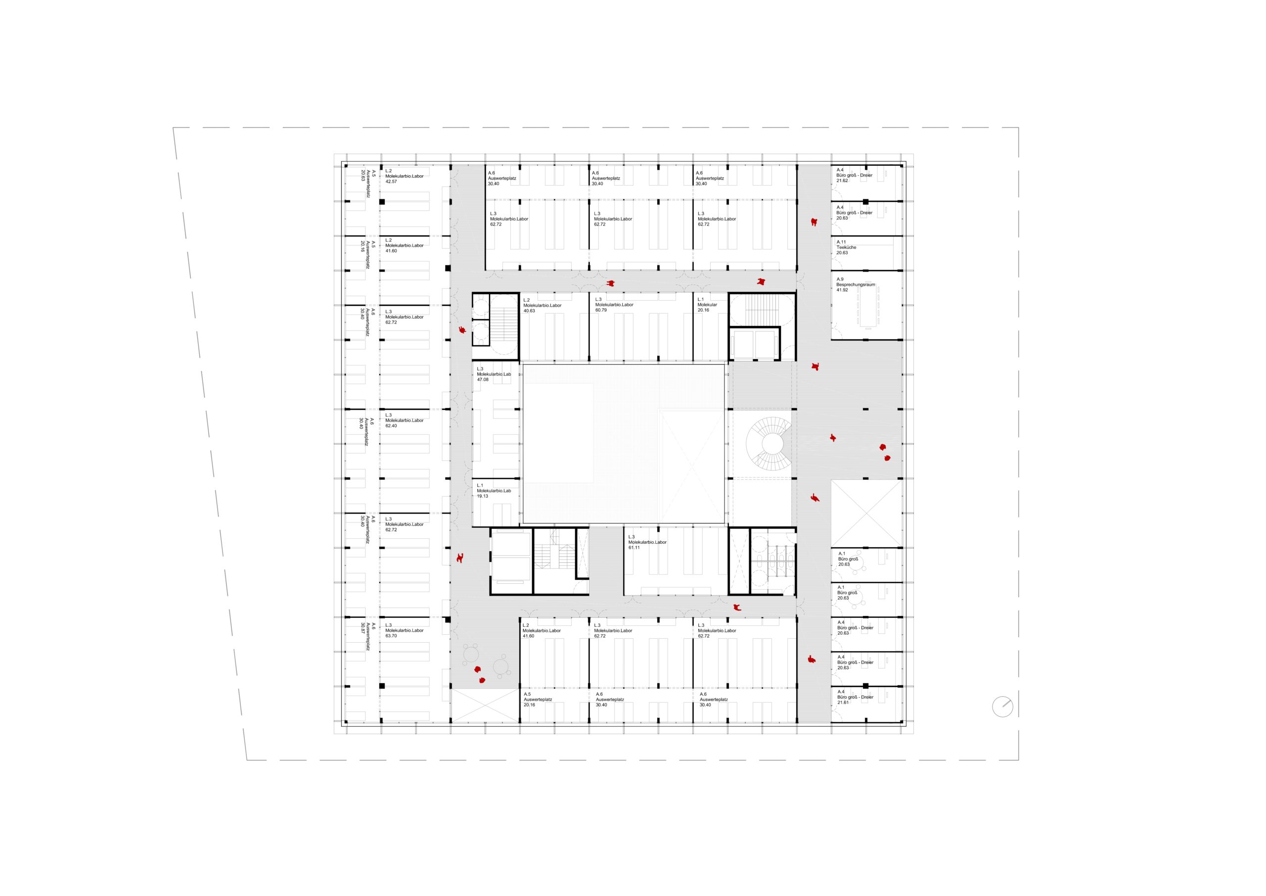
The project proposes a compact and clearly defined building that responds directly to the urban and regulatory framework of the University of Bonn campus. Shaped by the maximum permitted height and footprint, the design takes the form of a simple square volume rising to five stories, ensuring formal clarity and efficient land use. The concept is driven by the coexistence of teaching and research, carefully organized within a single, unified structure. These programs are systematically separated in plan and section, addressing their differing spatial, technical, and privacy requirements while maintaining a cohesive architectural identity. At ground level, two independent entrances reinforce this distinction and establish a clear, legible relationship with the surrounding campus. At the same time, the building encourages interaction through a central vertical circulation core, conceived as a social and communicative space connecting students, researchers, and staff. This internal organization reflects the broader campus environment, balancing controlled conditions with opportunities for exchange and collaboration. Urban integration is further strengthened at ground level through a flexible structural system and open spatial configuration, enabling strong visual and physical connections to the exterior. A significant portion of the site is preserved as landscaped open space, enhancing environmental quality, natural ventilation, and acoustic comfort. Overall, the project combines compactness, functional clarity, and environmental responsiveness, resulting in a highly efficient building that integrates seamlessly into its academic and urban context.
Share
Tweet
Pin it
























