Die Glocke Concert Hall
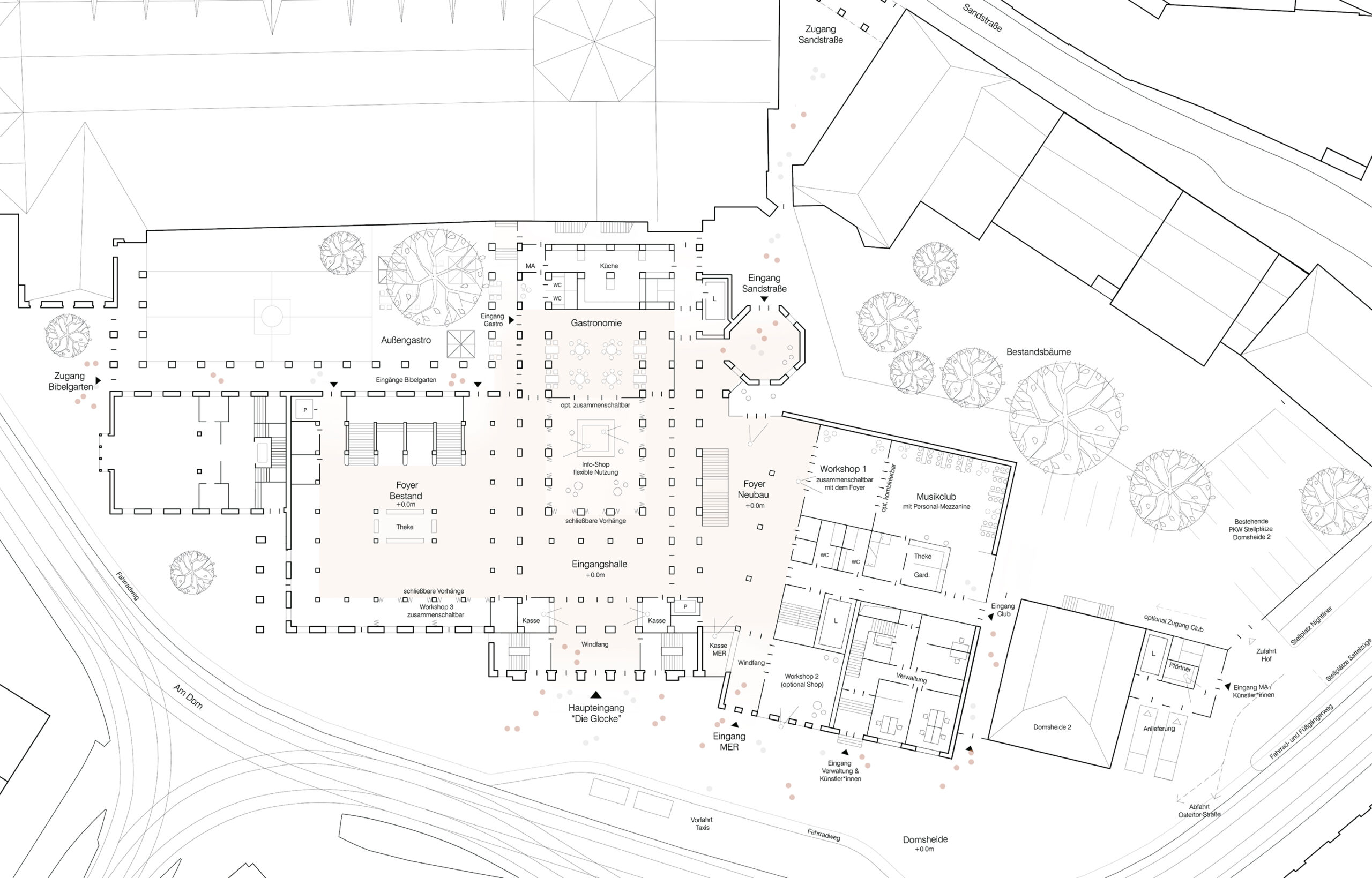
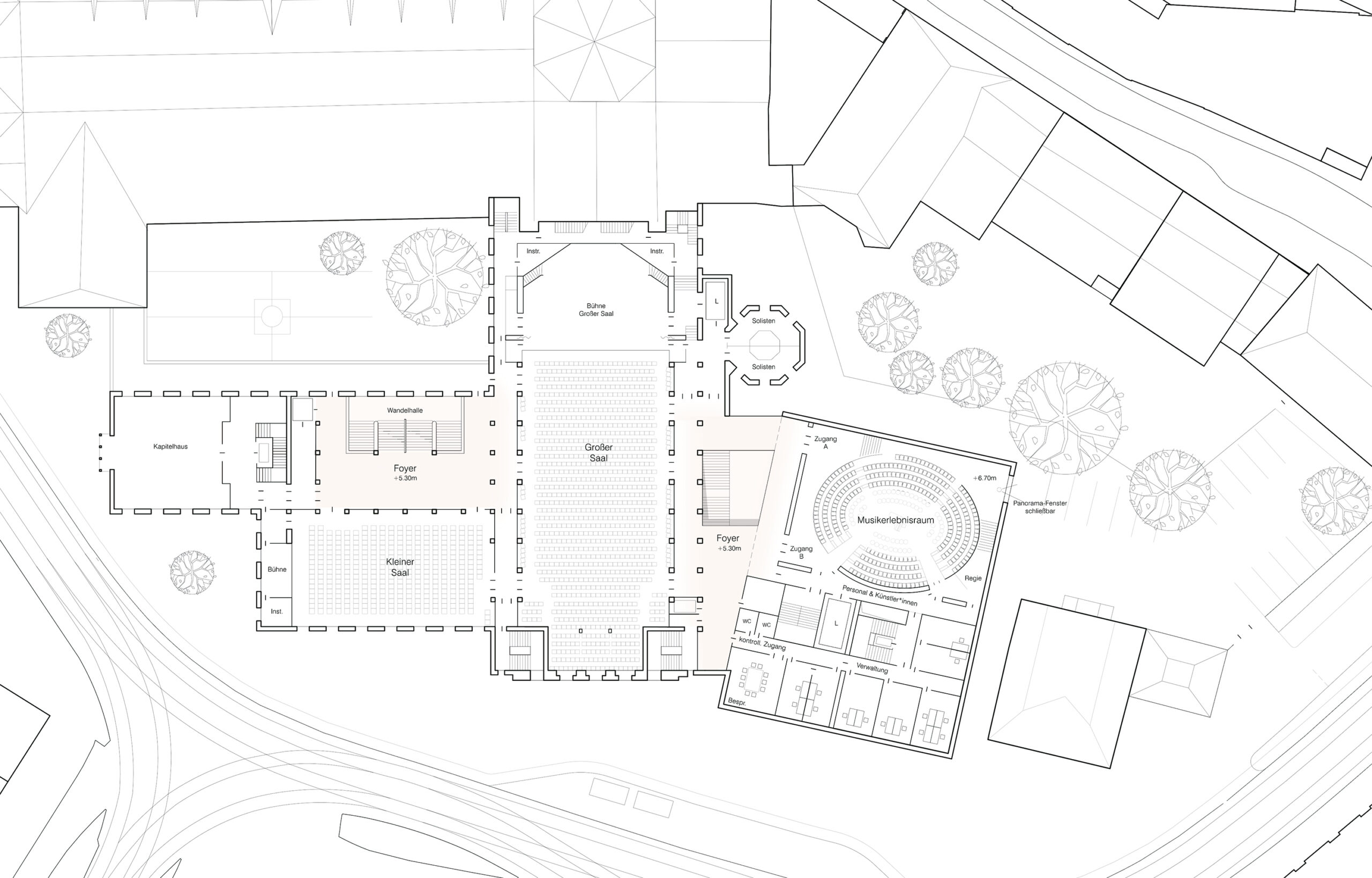
The proposal expands Bremen’s renowned concert hall Die Glocke by carefully embedding a new volume into the historic context of Domsheide. A clear geometric form connects to the existing building through a transparent glass joint, preserving and integrating listed façades and reinforcing the continuity of the urban block. The new pitched copper roofs echo Bremen’s characteristic roofscape, anchoring the extension within the city’s silhouette while establishing a distinct contemporary identity. Strategic façade openings create visual dialogue with the surrounding public spaces and reveal the musical life inside. The project centers on a new “Musikerlebnisraum” with an elliptical seating arrangement around a predominantly central stage, fostering intimacy between performers and audience. A light-filled foyer atrium links the historic halls and the new space, allowing independent and combined operation. The result is a seamless spatial continuum that strengthens Die Glocke’s cultural presence while enhancing its urban integration and architectural clarity.
Share
Tweet
Pin it

















