A New Cultural Hub in Onex
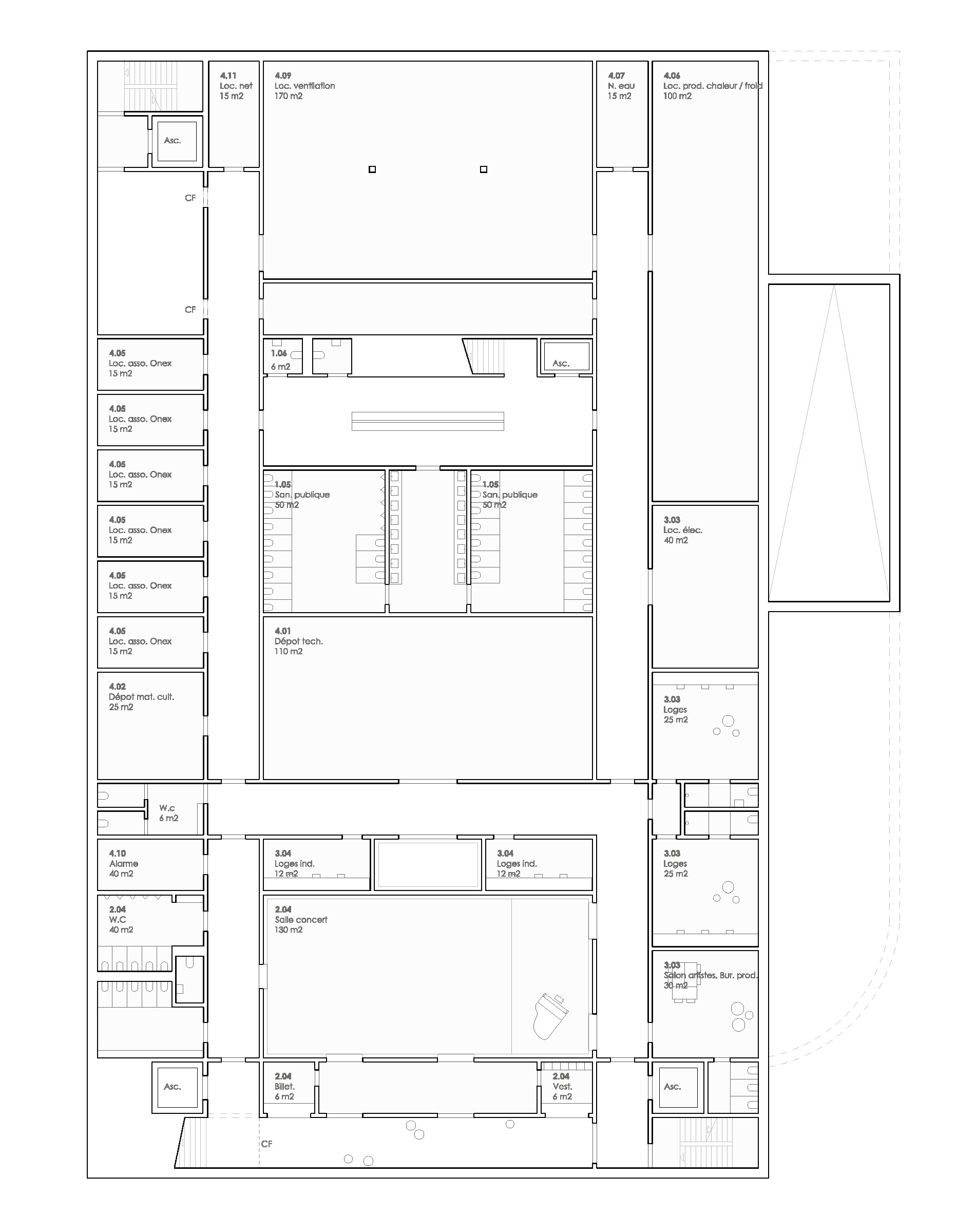
The project is conceived as a compact and clearly defined volume that asserts its civic presence while integrating seamlessly into the surrounding urban fabric. It establishes a dialogue with nearby landmarks, including the Maurice Braillard town hall, the former farmhouse, and the Café de la Poste. Based on a careful reading of the site, the design creates a strong connection with the future Place des Deux-Églises, with the preserved farmhouse acting as a key reference that structures the public space and reinforces the site’s identity. This approach enables a reorganization of the outdoor areas, introducing intuitive and inclusive pathways that transform the setting into a lively public square linking Onex with its historic center. The building reflects a strong commitment to sustainability using organic and recycled materials, a prefabricated timber structure, corrugated metal cladding, and high-performance systems such as geothermal energy, rainwater harvesting, and a green roof with integrated solar panels. Inside, the layout is clear and adaptable, supporting flexible uses and encouraging social interaction through open, welcoming spaces. The result is durable, responsible, and context-driven architecture designed to serve the community.
Share
Tweet
Pin it




















