A New Contemporary Theatre in Szczecin
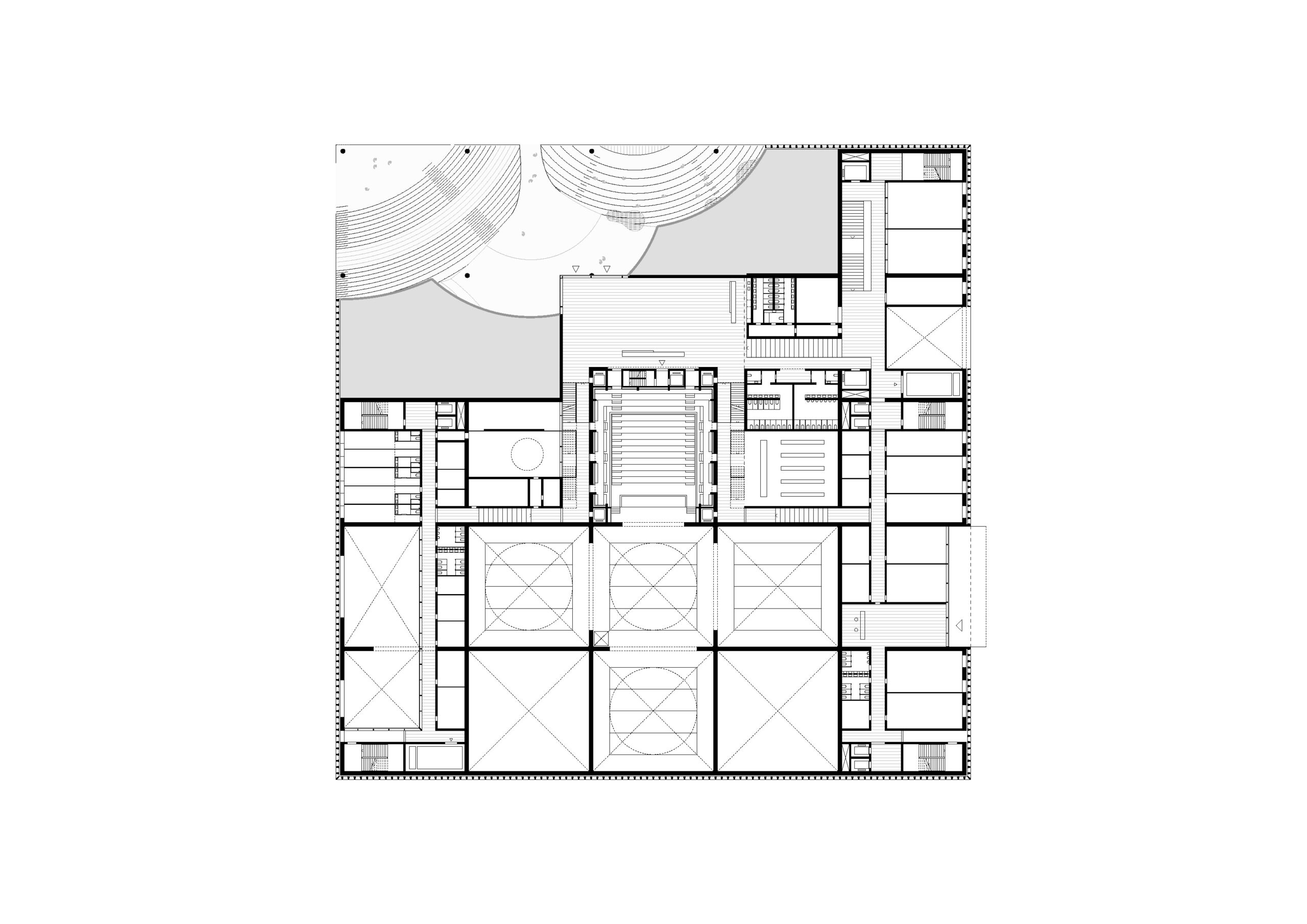
The project envisions the new theatre as an organic extension of Szczecin rather than a standalone landmark, an architecture that blends seamlessly into the city’s evolving urban landscape. Set on Łasztownia Island, the design builds physical and symbolic connections with the historic city centre by extending Szczecin’s network of streets, squares, and public spaces across the Odra River. A new pedestrian axis strengthens this relationship, aligning the building with key urban landmarks and embedding it into the city’s broader territorial structure. By weaving into this existing urban fabric, the theatre becomes more than a cultural venue which acts as infrastructure, civic hub, and destination, all at once. Architecturally, the building rises from the ground as a sculpted terrain, formed through subtraction rather than addition. Carved concavities shape terraces, outdoor auditoriums, and social gathering areas, transforming the roof into an accessible public landscape. This continuous surface dissolves the line between architecture and city, turning the theatre into an open “stage” for daily life. Above this landscaped base, carefully defined volumes contain the main auditoriums, creating a dynamic interplay between the fluid base and the precision of the performance spaces. The result is an architecture that fuses public space, cultural engagement, and environmental design into one immersive urban experience.
Share
Tweet
Pin it
























